Architectural Design Services - Boston, Massachusetts














Boston, MA
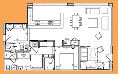
Floor Plan
View toward kitchen
This one bedroom, 1-1/2 bath loft residence in Boston’s South End was designed to provide a comfortable, contemporary home without excessive cost that can be associated with custom renovations. The innovative use of stock cabinetry from IKEA, modular commercial kitchen items, in combination with a clever plan would have all contributed to a design that was intended to meet the client’s expectations and budget.
Peter Herman, Architect, AIA - Copyright © 2007 Studio.625, Inc. All rights reserved. Corporation name & logo are Service Marks