Architectural Design Services - Boston, Massachusetts














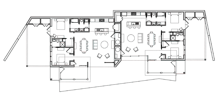
Bermed into the sloping grade, these green roof buildings would have benefited from natural heating and cooling properties. The floor plan featured two generous bedrooms with en suite bathrooms, a sunny entry porch, sky-lit kitchen, and terraces.
Peter Herman, Architect, AIA - Copyright © 2007 Studio.625, Inc. All rights reserved. Corporation name & logo are Service Marks