Architectural Design Services - Boston, Massachusetts














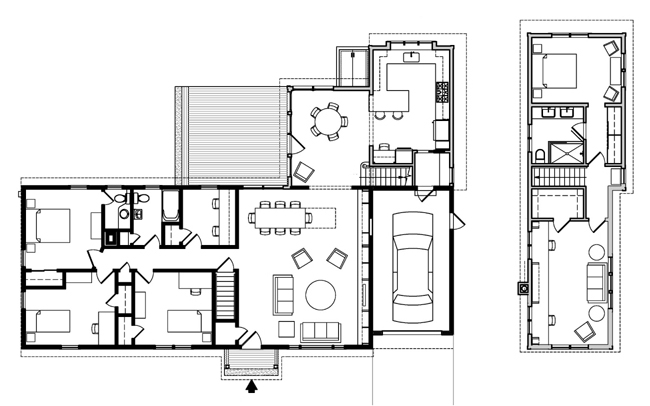
Floor Plans depicting existing and new spaces. Dark filled walls are existing, light filled are new. The original kitchen was in the upper right-hand corner of the living/dining room. Moving it to the addition significantly increased the home's entertaining space.
Peter Herman, Architect, AIA - Copyright © 2007 Studio.625, Inc. All rights reserved. Corporation name & logo are Service Marks